Mieszkanie na sprzedaż Częstochowa, Parkitka

4 pokoje
67.30 m²
8 558,69 zł/m2
2 piętro
JZN-MS-264

576 000 zł

Mieszkanie na sprzedaż

Szczegóły oferty

Symbol oferty JZN-MS-264
Powierzchnia 67,30 m²
Powierzchnia użytkowa [m2] 67,30 m²
Liczba pokoi 4
Rodzaj budynku apartamentowiec
Standard
Piętro 2
Liczba pięter w budynku 3
Garaż miejsce parkingowe
Stan lokalu Do wykończenia
Okna PCV
Instalacje nowe
Balkon duży
Rok budowy 2026
Plac zabaw tak
Gaz jest
Dojazd asfalt
Otoczenie zabudowa wielorodzinna
Ogrzewanie podłogowe
Umeblowanie puste
Winda tak
Usytuowanie dwustronne
Drzwi antywłamaniowe tak
Joanna Żurek

Joanna Żurek


Nr licencji: 27790

Napisz wiadomość 22 Ofert

Opis nieruchomości

NEO Nieruchomości prezentuje mieszkanie z rynku pierwotnego – osiedle Parkitka, ulica łódzka.

Na sprzedaż nowoczesne mieszkanie w inwestycji deweloperskiej, oferowane na zasadzie cesji praw z umowy deweloperskiej. To doskonała propozycja zarówno dla osób poszukujących własnego „M”, jak i dla inwestorów.

Planowany termin odbioru: październik 2026

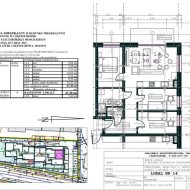
Nieruchomość usytuowana jest na 2. piętrze w kameralnym, 3-piętrowym budynku. Lokal posiada funkcjonalny układ pomieszczeń oraz duży balkon, który stanowi idealne miejsce do relaksu.

STANDARD:
Mieszkanie w stanie deweloperskim – daje możliwość wykończenia i aranżacji według własnych potrzeb i gustu.

ATUTY NIERUCHOMOŚCI:
- brak podatku PCC 2%
- cena niższa niż aktualna oferta dewelopera
- nowoczesne osiedle o wysokim standardzie
- funkcjonalny układ pomieszczeń
- duży balkon
- ogrzewanie podłogowe
- duża ilość miejsc parkingowych
- plac zabaw dla dzieci
- atrakcyjna lokalizacja

LOKALIZACJA:
W najbliższym otoczeniu znajduje się szkoła podstawowa, sklepy oraz punkty usługowe. Lokalizacja zapewnia komfort codziennego życia oraz szybki dostęp do głównych arterii komunikacyjnych.

DODATKOWE INFORMACJE:
Istnieje możliwość dokupienia miejsca postojowego w garażu podziemnym wraz z komórką lokatorską.

Cesja realizowana zgodnie z zapisami umowy deweloperskiej.

Zapraszam na prezentację w każdy dzień tygodnia!
Współpracujemy z doradcą kredytowym, notariuszem, firmą sprzątającą i transportową = kompleksowa obsługa!

Lokalizacja nieruchomości

Podobne oferty

Oferta specjalna

Mieszkanie na sprzedaż

Częstochowa, Parkitka

3 pokoje 56 m2 8 800,00 zł/m2
Oferta specjalna

Mieszkanie na sprzedaż

Częstochowa, Parkitka

2 pokoje 44 m2 11 590,91 zł/m2

Proszę wprowadzić poprawne imię i nazwisko
Proszę wprowadzić poprawny numer telefonu
Proszę wprowadzić poprawny adres e-mail
Proszę zaznaczyć wymagane zgody
Rozwiąż równanie:
17 6
Niepoprawny wynik